Aquainfo.dk

Tank rack, 526 liter

This custom made tank rack, was my most expensive project so far...

Se galleri
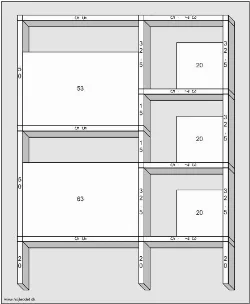
Tank rack, total contents: 515 liter
Tank rack, total contents: 515 liter

When I re-started with aquariums in 2001, I decided to build my own rack from Porsa aluminium profiles. It is relatively easy to build with Porsa profiles, but also quite expensive. You cut the profiles in the length you need and join them with premade corner profiles. Actually, if you plan your rack in advance, you can order the profiles pre-cut in the lengths you need, which makes the assembly both faster and simpler. The project started in one of our empty rooms, where I had my 53 liter tank on an old table and I needed to find more space for my 3 20 liter tanks and my 63 liter tank.

Version I - 176 liter

To begin with, I build the rack to hold up to 6 tanks. I already had the 5, my 53 liter, a 63 liter and 3 20 liter tanks. On top was room for an additional 160 or 180 liter tank, but I redesigned the rack before I got around buying that. The rack was 100 cm wide and 40 cm high from the start.

Version II - 426 liter

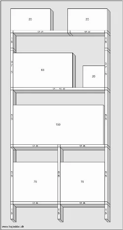
I decided to move my rack to my home office to get all tanks in the same room, and to make it fit I had to make some adjustments in the size and to maximize capacity I added one more shelf. The second version had room for 3 20 liters on top, 1 63 liter on 3rd shelf, 1 153 liter tank on the 2nd shelf and 2 75 liters in the bottom. I got some of the materials for this rebuild when I bought a rack with the 2 75 liter tanks and the 153 liter tank.

Version IIb - 491 liter

Since the 3rd shelf had room for a much bigger tank, the next obvious change was to replace the 63 liter with a 128 liter, adding 65 liter to the capacity.

Version IIc - 507 liter

By changing the alignment on the 3 20 liter tanks on top, I found room for a 16 liter tank more on the top.

Version IId - 515 liter

By changing the 16 liter with 2 12 liter tanks, I more or less used the rack's capacity fully.

Version IIe

With all the tanks in place, it became evident that the rack needed some finish and at the same time I also realized that lighting was the most important factor in Aquatic photography so I decided to add more lights. I added 3 E14 light bulbs on each shelf, plus 2 more for extra lights and 1 for simulating dusk and dawn before the main lights go on and off respectively. Finally, I cut some wood planks to place between each shelf. This shielded the lights from the spectator and gave a nice finish on the rack as well.

The rack is the single most expensive item I have procured for my aquatic hobby. The total price is more than 3.000 DKK including lights.

Version IIf

I realized that I made an error when I constructed the rack. Even the small tanks are too heavy for an assembly on the long side of the rack (as I have done on the top shelf). Therefore I have to move the tanks on the top, disassemble the lights for number 2 shelf from the top and replace the two profiles with a full length profile and add a shelf that will be even with the top to be able to continue using the 2 12 liter tanks.

Version IIg - 531 liter

The small tanks on the top shelf has been replaced with a custom made 100 liter tank that fits exactly on the top.

Version IIh - 526 liter

The old 153 liter tank was replaced with a brand new 148 liter tank - custom made for the rack.

Current status

Even though I was reluctant to admitting it, I had a very long period without surplus of time and energy, which meant I didn't get around to keep my tanks clean and in the end I put the rack with tanks up for sale. It was rather sad when it was picked up and I now only have 3-4 small tanks left and only one of those are currently in operation.

Faktatabel

Quick Stats
Purchased

August 2001

Length

97.5

Height

190

Width

40

Billedgalleri

Here is the latest addition to the small tank rack: A custom built 100 liter tank that fits exactly on the top shelf.

Here is the latest addition to the small tank rack: A custom built 100 liter tank that fits exactly on the top shelf.

Tank rack, total contents: 515 liter

Tank rack, total contents: 515 liter

Version IIb with 7 tanks from 20 to 153 liter.

Version IIb with 7 tanks from 20 to 153 liter.

Here the rack has been changed to version II, but I still need to move some aquariums.

Here the rack has been changed to version II, but I still need to move some aquariums.

Not least the top has turned out very well, in my own opinion. All cables and the like are now hidden from the viewer.

Not least the top has turned out very well, in my own opinion. All cables and the like are now hidden from the viewer.

In version IIb there was 3 20 liter tanks and 2 12 liter tanks on the top shelf. Here you see the ends of the 2 12 liter tanks.

In version IIb there was 3 20 liter tanks and 2 12 liter tanks on the top shelf. Here you see the ends of the 2 12 liter tanks.

In version IIc, the top row was expanded to three 20-liter and one 16-liter.

In version IIc, the top row was expanded to three 20-liter and one 16-liter.

In version IIb, there were previously 3 20-liter tanks on top.

In version IIb, there were previously 3 20-liter tanks on top.

My small aquarium rack in version 2. It is a great help to have a drawing when ordering Porsa tubes, at least for me.

My small aquarium rack in version 2. It is a great help to have a drawing when ordering Porsa tubes, at least for me.

First version of my little rack

First version of my little rack

The red arrow points to a minor construction error - you must avoid joining horizontal beams since they are not able to carry the weight and will bend.

The red arrow points to a minor construction error - you must avoid joining horizontal beams since they are not able to carry the weight and will bend.

Comments

Diskussion
Vi gennemser alle kommentarer.
A
Anonym
2006-11-20 15:20:07
Hvordan renser du akvarierne, i dine reoler.
Aquainfo
Vandet tapper jeg af med en slange efter hævert metoden og ruderne renser jeg med en skraber. Ved hovedrengøringer tømmer jeg akvarierne helt og tager dem ud af reolen.
S
Steen Flemming
2006-10-19 17:54:59
Ak ja, hvem der bare fik lov til en så stor og flot akvarivæg. Må jeg forøvrigt give mine største komplimenter til din hjemmeside (Højleddet). Sjældent har jeg fået så meget viden om min hobby. Stort TAK.
Aquainfo
Indimellem så jeg gerne at den var dobbelt så stor (eller mere), men med den tid jeg har til min hobby er den passende, så jeg er også ret glad for den.